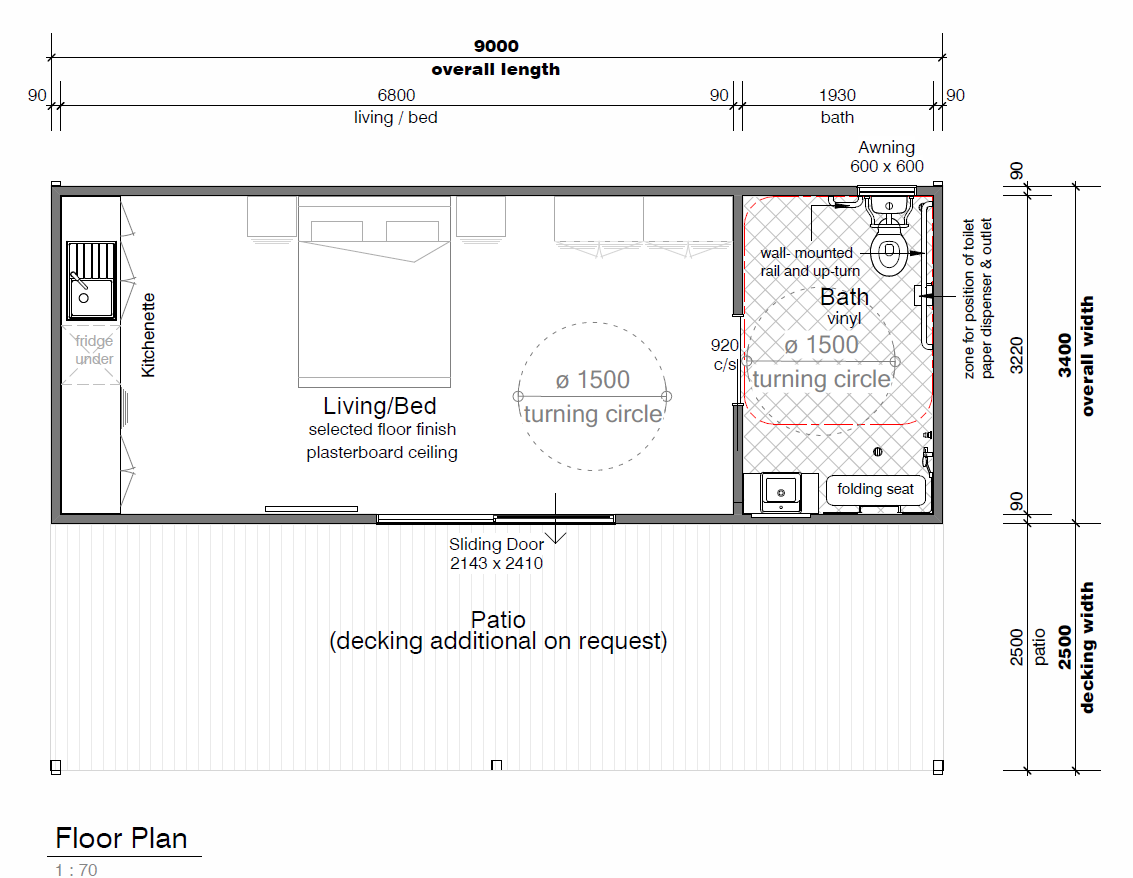
- The Black Swan is the base model in our Easy Access range
- Offers an access-friendly plan with open living, including kitchenette and ensuite bathroom
- Bathroom promotes accessibility with a full 1500 degree turning circle, including a wall mounted rail and folding seating area for ease of use
- Wide sliding doors and generous patio area promotes mobility and lets in natural light
