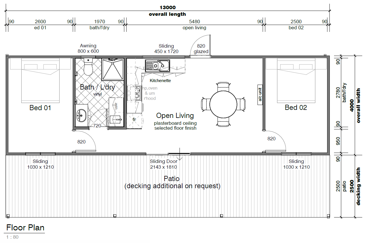
- The Blue Bottle comes standard with two bedrooms and central bath/laundry
- It consists of an open living room kitchen area leading out to the patio area via sliding doors.
- Living room area offers space for a dining room table
- Designed for extended-stay holiday parks and farm retreats.
