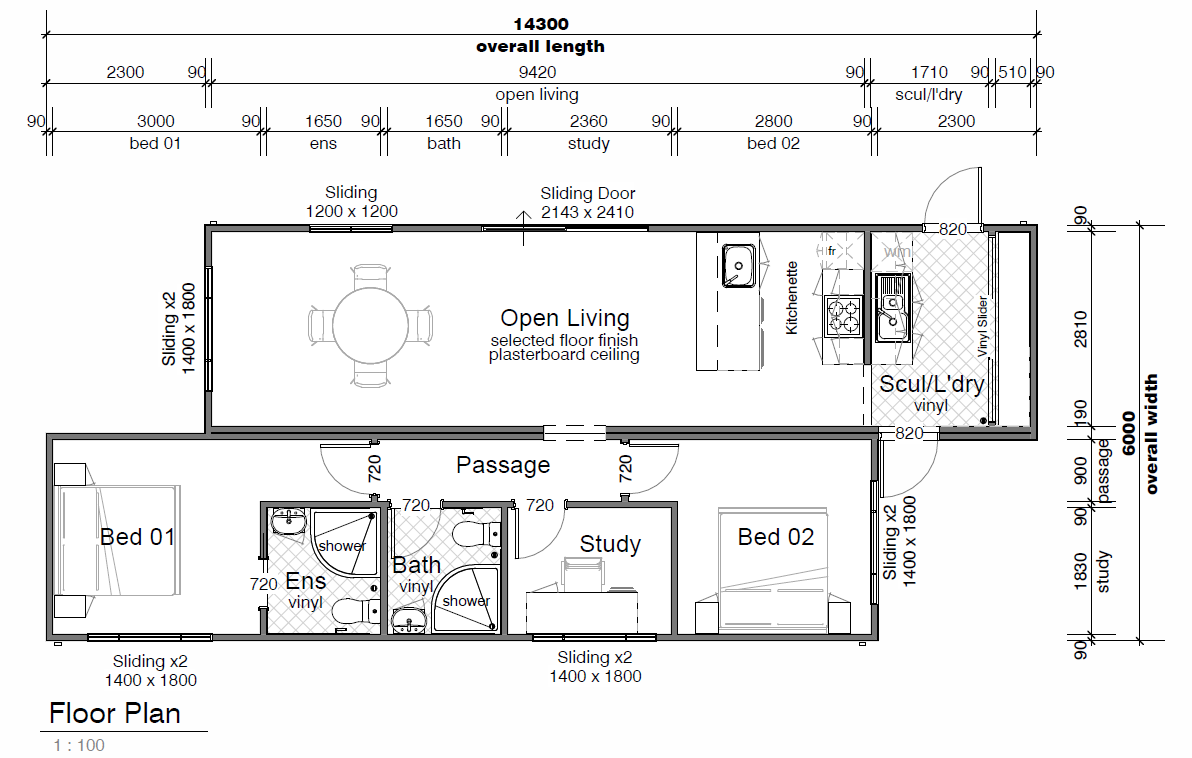
- Bottlebrush contains two self-contained 36 m²units for a larger family
- The first unit contains a spacious main bedroom with ensuite bathroom
- An additional bedroom and study with shared bathroom space is included
- The second unit contains the main living quarters with a large open plan living area
- The living room opens to the outside area with spacious sliding doors
- Includes ample space for a kitchen diner, open plan kitchenette and kitchen island as well as a spacious scullery with additional washing area.
- Perfect for a growing young family or for newly weds
