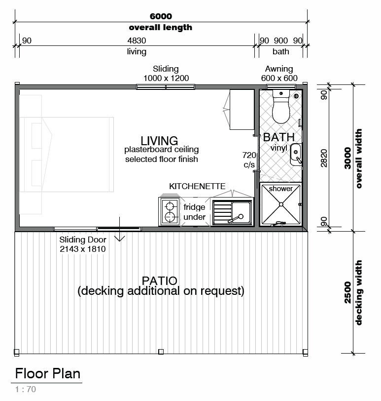
- The Cockatoo offers a studio footprint for compact sites.
- Includes an efficient kitchenette, living and bath area
- A sliding door to patio boosts airflow and ease of access to the outdoor space.
- High quality materials simplify services and results in very little maintenance.
- Perfect for short-stay holiday units or backyard studios
