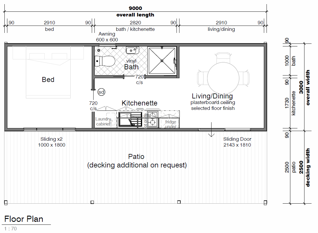
- The Emu comes standard with versatile living/bed studio and a generous bathroom zone.
- Living room area includes space for a dining room table, kitchenette and full bathroom.
- The patio sliding door opens up adjacent the dining room area promoting natural light, ease of access and flow towards the patio deck.
- Laundry inclusion supports extended stays and comfort

 
															 
															