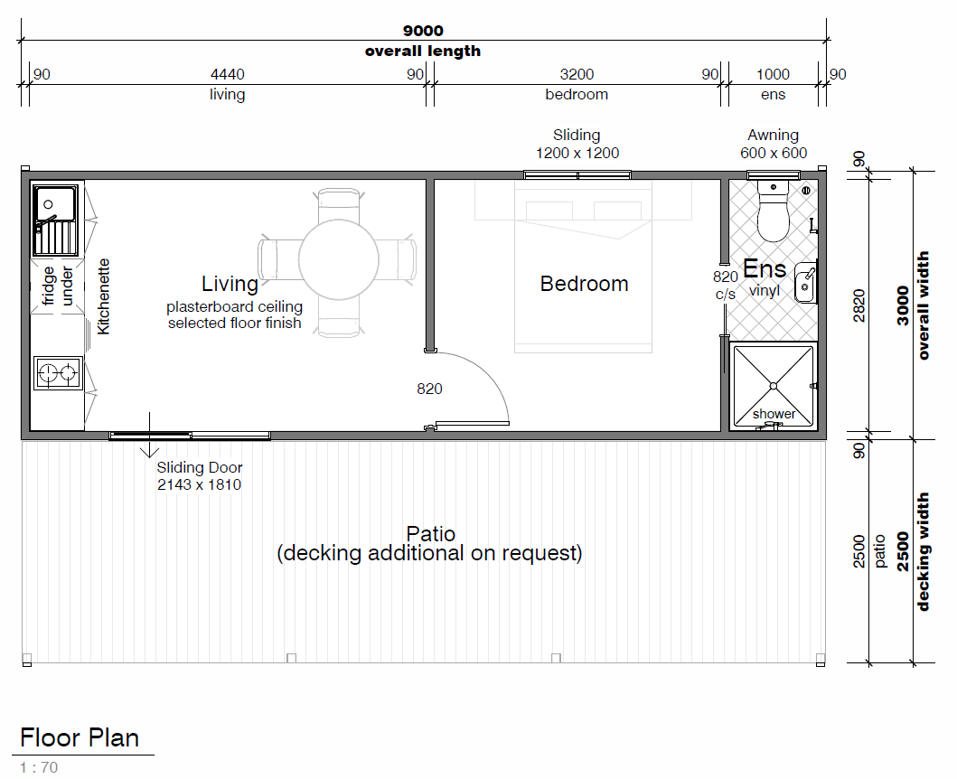
- The Flying Fox offers a single bedroom and separate living room
- Includes a large ensuite bathroom and shower combination
- The living room area includes a kitchenette alongside the wall and a large sliding door providing access to the patio decking area
- Great for guest accommodation and granny flats
