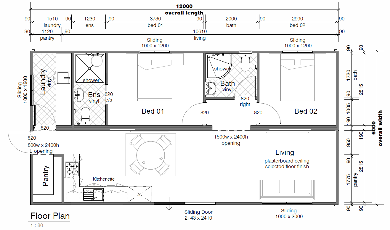
- The Kangroo showcases dual 12×3 modules with ample space.
- It offers a spacious main bedroom with ensuite bathroom shower area
- An additional bedroom connects to the family bathroom which includes a bath
- The open plan kitchen living area offers room for a tv living room, dining room table as well as kitchenette with a large sliding door
- Perfect for homes of small families or workers cottages
